Если цена в объявлении изменится, мы сразу сообщим вам об этом на электронную почту.
Нажимая «Подписаться», вы соглашаетесь с правилами.
продам 2-к, Носовихинское шоссе, 1115 800 000 ₽
1 дек 2024
Дата публикации объявления
Обн. 3 мар 2025
Дата обновления объявления
3
Количество просмотров (+ просмотры за сегодня)
234 074 ₽/м²
Чистая продажа
Термин "Чистая продажа" означает, что в квартире никто не прописан или
есть куда выписаться и вывезти вещи. Это лучший вариант для покупателя.
Вероятность срыва сделки минимальна.
Красивая двухкомнатная квартира после косметического ремонта 67,5 кв.м. у метро! По факту, это почти 3к.квартира. Заезжай и живи- чистота и аккуратность. Рядом Центральный парк.
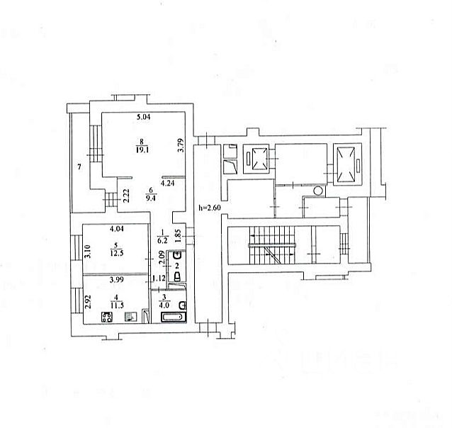
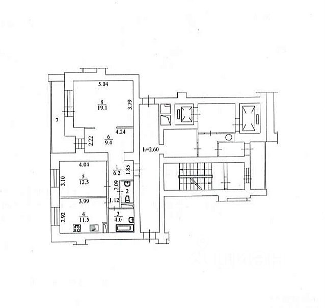
Комнаты 12,5 кв.м. и 19,1 кв.м., изолированы по планировке (у одной комнаты арка, можно поставить дверь). Просторная кухня 11,5 кв.м. Прихожая 6,2 кв.м. с большим холлом, украшенным арками. Холл 9,4 кв.м. с окном может стать полноценной комнатой с выходом на застекленную лоджию. Лоджия 3,4 кв.м. имеет два входа: из комнаты и из холла. Два санузла: гостевой санузел с рукомойником и удобная ванная комната. Чистый подъезд. Доброжелательные соседи. Закрытый тамбур на три квартиры. Шикарная инфраструктура и транспортная доступность.
Красивая двухкомнатная квартира после косметического ремонта 67,5 кв.м. у метро! По факту, это почти 3к.квартира. Заезжай и живи- чистота и аккуратность. Рядом Центральный парк.
Комнаты 12,5 кв.м. и 19,1 кв.м., изолированы по планировке (у одной комнаты арка, можно поставить дверь). Просторная кухня 11,5 кв.м. Прихожая 6,2 кв.м. с большим холлом, украшенным арками. Холл 9,4 кв.м. с окном может стать полноценной комнатой с выходом на застекленную лоджию. Лоджия 3,4 кв.м. имеет два входа: из комнаты и из холла. Два санузла: гостевой санузел с рукомойником и удобная ванная комната. Чистый подъезд. Доброжелательные соседи. Закрытый тамбур на три квартиры. Шикарная инфраструктура и транспортная доступность. Изобилие сетевых магазинов, кафе, ресторанов и бытовых услуг. Рядом лицей. Хороший, современный, кирпичный дом 2000 года постройки. Закрытый двор.
В ближайшее время обновим фото и сделаем видео.
Один взрослый собственник, свободная продажа, полная стоимость в договоре, без обременений.