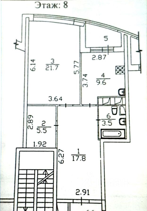
Просторная, светлая 1-комнатная квартира в ЖК Лесная, 11 - г. Реутов, ул. Лесная, дом 11, расположена на 8 этаже 25-этажного монолитно-кирпичного дома башенного типа 2012 года постройки.
Общая площадь квартиры - 61,5 кв.м (без лоджии 58,1 кв. м), комната - 21,7 кв. м, кухня 9,6 кв. м, просторный холл - 17, 8 кв. м, есть кладовая 5,5 кв.м, санузел совмещенный -3,5 кв.м, лоджия 3,4 кв. м с выходом из кухни, застеклена.
Высокие потолки! Перепланировки нет!
ПРОИЗВЕДЕНА СВЕЖАЯ ПОКРАСКА СТЕН ВО ВСЕЙ КВАРТИРЕ!
Отличный вид из окон на юг в сторону стадиона!
ОТЛИЧНОЕ ПРЕДЛОЖЕНИЕ!!!
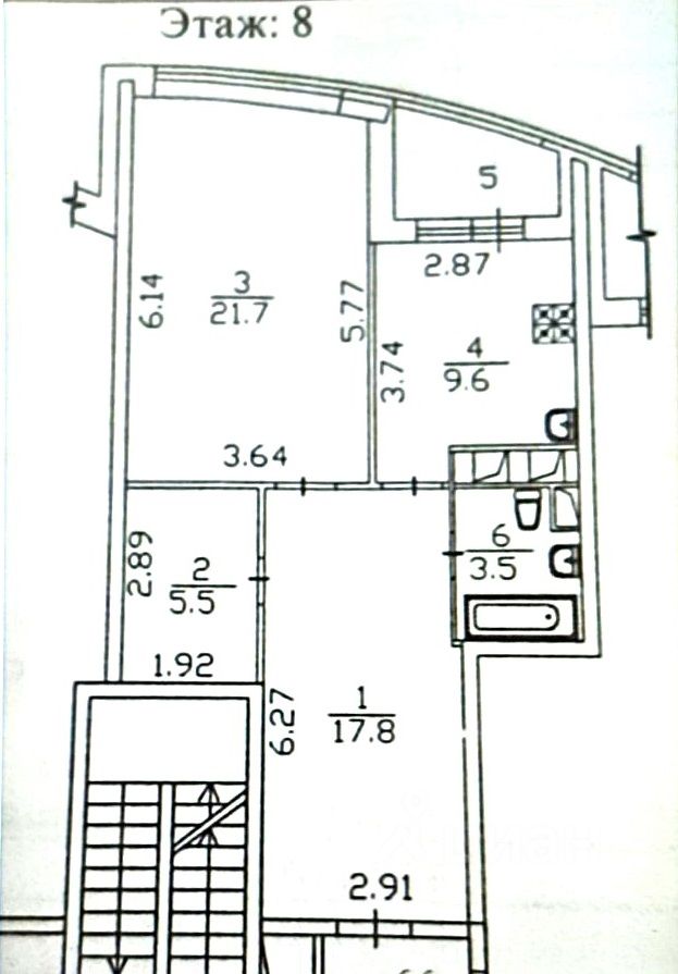
Просторная, светлая 1-комнатная квартира в ЖК Лесная, 11 - г. Реутов, ул. Лесная, дом 11, расположена на 8 этаже 25-этажного монолитно-кирпичного дома башенного типа 2012 года постройки.
Общая площадь квартиры - 61,5 кв.м (без лоджии 58,1 кв. м), комната - 21,7 кв. м, кухня 9,6 кв. м, просторный холл - 17, 8 кв. м, есть кладовая 5,5 кв.м, санузел совмещенный -3,5 кв.м, лоджия 3,4 кв. м с выходом из кухни, застеклена.
Высокие потолки! Перепланировки нет!
ПРОИЗВЕДЕНА СВЕЖАЯ ПОКРАСКА СТЕН ВО ВСЕЙ КВАРТИРЕ!
Отличный вид из окон на юг в сторону стадиона!
Чистый, просторный подъезд, c шикарной, отделанной деревом входной группой, большой холл на первом этаже, консьерж, 4 скоростных бесшумных лифта.
ЖК с собственной огороженной территорией! Закрытый двор, въезд через шлагбаум, круглосуточное видеонаблюдение по периметру дома, подземный паркинг, гостевая парковка, во дворе детская площадка, детский сад, продуктовый магазин в доме. Вокруг дома развитая инфраструктура: школы, детские сады, в шаговой доступности ТРЦ Шоколад, ДК Мир, рядом стадион Старт (футбольный клуб), на территории которого заканчивается строительство нового Фитнес-центра с открытыми и закрытыми бассейнами, тренажерными залами, термальным комплексом, зоной единоборств и т.д. Отличная транспортная доступность: до станции МЦД Реутов 10-12 минут пешком, до метро Новокосино 18-20 минут пешком, удобный выезд на МКАД.
Квартира в собственности на основании ДДУ 2012 года, полная стоимость в договоре, один взрослый собственник, в квартире никто не зарегистрирован, ОБРЕМЕНЕНИЙ НЕТ. АЛЬТЕРНАТИВА ПОДОБРАНА!