Без комиссии,
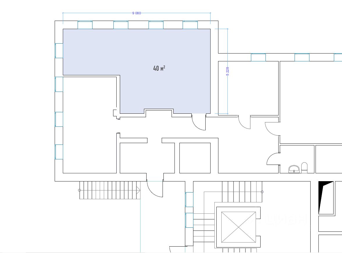
Сдается помещение 45 м2 в БЦ на пересечении Горьковского шоссе и МКАД.
Зал 40м2, а также 5м2 места общего пользования (коридор, с/у).
- 1-ый этаж, открытая планировка. Высокие потолки 3.3 м,
- Коммуникации: отопление, эл-во, с/у на этаже,
- Охраняемая территория, большая бесплатная парковка,
- Прямой договор с собственником, без комиссии,
Хорошее транспортное расположение: выезд на МКАД, шоссе Энтузиастов/Горьковское шоссе.
Недалеко остановка общественного транспорта, ж/д станция Стройка. До м. Новогиреево, Измайловская 15 мин. на транспорте.
Дополнительно оплачивается электричество по счетчику.
УСН. Обеспечительный платеж (депозит) - 1 месяц.











