Если цена в объявлении изменится, мы сразу сообщим вам об этом на электронную почту.
Нажимая «Подписаться», вы соглашаетесь с правилами.
продам 1-к, Садовый проезд, 3 корп. 19 900 000 ₽
16 июля 2025
Дата публикации объявления
Обн. 19 июля 2025
Дата обновления объявления
189 655 ₽/м²
Чистая продажа
Термин "Чистая продажа" означает, что в квартире никто не прописан или
есть куда выписаться и вывезти вещи. Это лучший вариант для покупателя.
Вероятность срыва сделки минимальна.
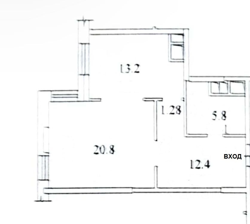
Внесен аванс до 15 августа. Продаю 1-комнатную квартиру по адресу г. Реутов, Садовый проезд, д.3 корп.1. Этаж 8/25МК. Площадь квартиры 52,2м2. Высота потолков 2,8м.
Вся мебель и техника остаются покупателю. Комната, площадью 20,8м2, полностью укомплектована мебелью. 2-спальная кровать размером 160х200. Смарт ТВ. Кухня, площадью 13,2м2, со встроенным кухонным гарнитуром со всей необходимой бытовой техникой. Санузел совмещенный, площадью 5,8м2. Стиральная и сушильная машинки остаются Покупателю.
Парковка наземная. Въезд свободный. Рядом с домом расположен Яблоневый сад и ДК ''Мир''. Поблизости дома имеется большая прогулочная зона, обустроенная целым комплексом детских площадок. Напротив дома детская поликлиника. В шаговой доступности находится детский сад и школа.
Внесен аванс до 15 августа. Продаю 1-комнатную квартиру по адресу г. Реутов, Садовый проезд, д.3 корп.1. Этаж 8/25МК. Площадь квартиры 52,2м2. Высота потолков 2,8м.
Вся мебель и техника остаются покупателю. Комната, площадью 20,8м2, полностью укомплектована мебелью. 2-спальная кровать размером 160х200. Смарт ТВ. Кухня, площадью 13,2м2, со встроенным кухонным гарнитуром со всей необходимой бытовой техникой. Санузел совмещенный, площадью 5,8м2. Стиральная и сушильная машинки остаются Покупателю.
Парковка наземная. Въезд свободный. Рядом с домом расположен Яблоневый сад и ДК ''Мир''. Поблизости дома имеется большая прогулочная зона, обустроенная целым комплексом детских площадок. Напротив дома детская поликлиника. В шаговой доступности находится детский сад и школа.
До метро Новогиреево 7 минут транспортом. 25 минут пешком до ближайшей станции МЦД ''Реутов''. Остановка общественного транспорта 400 метров от дома. 7 минут на маршрутном такси до станции метро ''Новогиреево''. 1км до МКАД.
Свободная продажа. Полная стоимость в договоре. Основание права дкп 2018 года. Один взрослый собственник. Ипотека возможна. Никто не прописан.